A few days ago, while updating the The Free Architecture Guide of Rome, something drew my attention, there were barely no new buildings after the 1960s. So I went through every single building of the map to check my suspicion and that was it, no major constructions in nearly 40 years! I wondered if it had to do with the urban space available or if it’s just difficult to build anything amazing compared to the ancient monuments of the city (the codes in Italy are very restrictive by the way). However, the Italian capital has experienced some changes in the last ten years (with some controversy of course) and this is what contemporary architecture looks like in Rome, have a look!
What are your thoughts about these buildings?

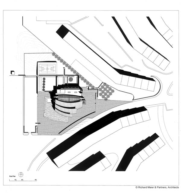
1. Ara Pacis Museum
Architect: Richard Meier
Year: 2006
Location: Lungotevere in Augusta
Facade Description: This museum on the bank of the Tiber River has been designed as a renewed setting for the Ara Pacis, a sacrificial altar dating to 9 B.C. The structure consists of a long, single-story glazed loggia elevated above a shallow podium providing a transparent barrier between the embankment of the Tiber and the existing circular perimeter of the mausoleum of Augustus (28 B.C.) Read more here.

2. MAXXI Museum
Architect: Zaha Hadid
Year: 2009
Location: Via Guido Reni, 4A
Facade Description: The Museum of Arts of the XXI century took ten years to get built. As declared by the architect, the museum is ‘not a object-container, but rather a campus for art’, where flows and pathways overlap and connect in order to create a dynamic and interactive space which brought out the question if the concept of de-constructed fluidity matched with the identity of a “static” city as Rome, and with its classical heritage. Read more here.

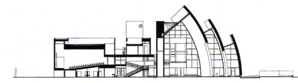
3. Auditorium Parco della Musica
Architect: Renzo Piano
Year: 2002
Location: Viale Pietro De Coubertin, 30
Facade Description: The Parco della Musica is a new centre for classical music comprising three separate concert halls, as well as an open-air amphitheatre. The three halls are grouped in a semi-circle, their positions to some extent determined by the discovery, during early excavations, of a roman villa on the site and the wish to incorporate its display within the music centre. Read more here.

4. Eurosky Tower
Architect: Franco Purini
Year: 2012
Location: Viale Giorgio Ribotta, 21
Facade Description: Built as the first skyscraper in Rome and one of the highest residential towers in Italy. Its shape and form may be shocking but it’s true that it is equipped with the latest technology solutions. (Ugly but sustainable?). Read more here.

5. Europarco Tower
Architect: Studio Transit
Year: 2012
Location: Viale Giorgio Ribotta + Viale Oceano Pacifico
Facade Description: It is the tallest building in the city and it has 120 metres and 30 floors. The tower, designed to accommodate offices, is constituted by a prism made of coated glass and aluminum vertical shading elements and cells. Read more here.

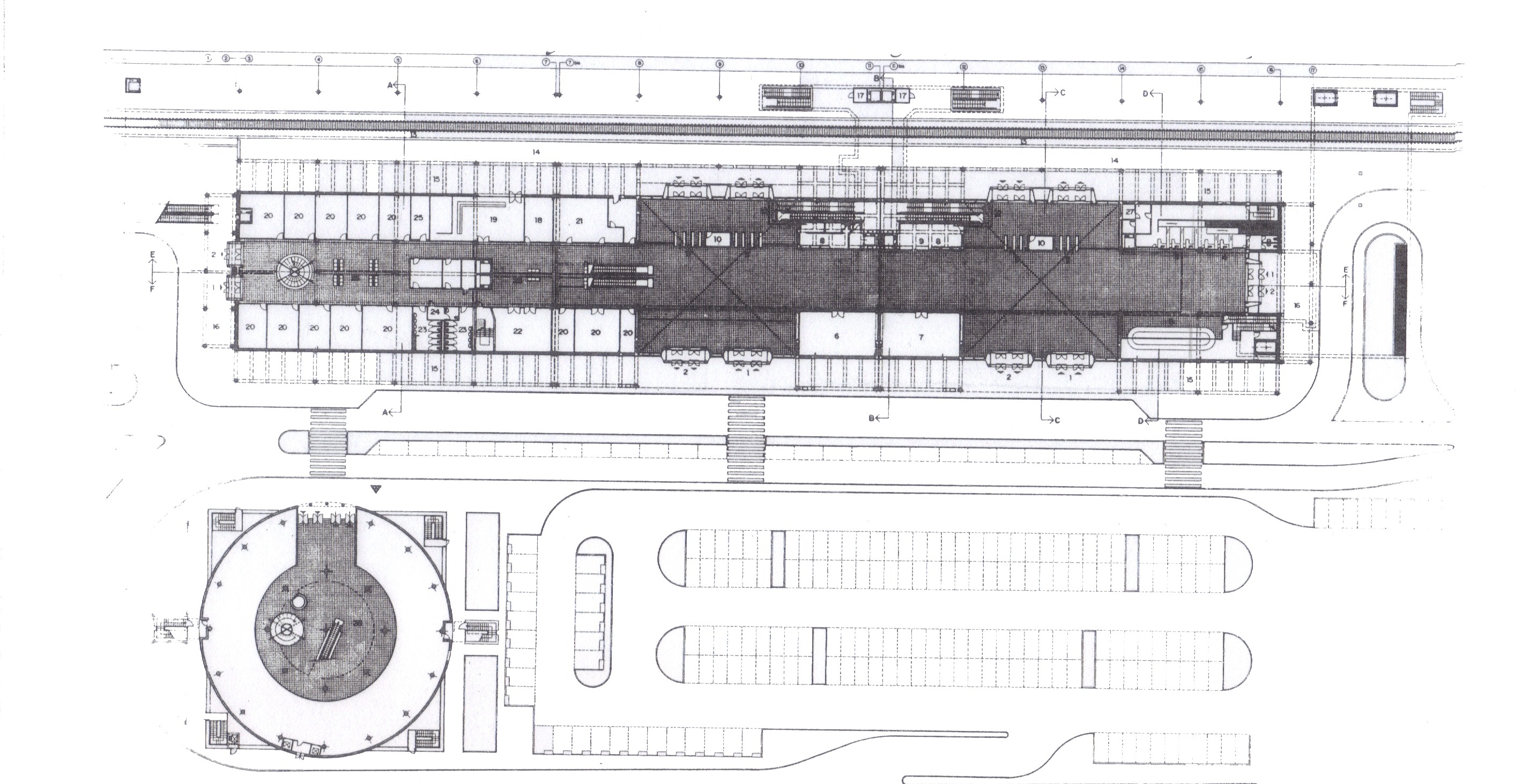
6. New Triburtina Station
Architect: Paolo Desideri (ABDR Architetti Associati)
Year: 2011
Location: Piazzale della Stazione Tiburtina
Facade Description: The Tiburtina station has grown to become one of Rome’s principle public transportation interchange points, housing a B line metro stop beneath it and a major national and international bus terminal adjacent to it. The construction of the new station will also provide room for the creation of new parks, green areas , roads, plazas, commercial and office space. Read more here.

7. Eataly Center, Rome
Architect: Julio Lafuente and Giulio San Rocchi
Year: 1990-2012 (restoration)
Location: Piazzale XII Ottobre 1492 (Ostiense Air Terminal)
Facade Description: After years of non-use and abandonment, the Air Terminal Ostiense, built for the World Cup in 1990, returned to life with Eataly, the site par excellence of Italian culinary products. So this isn’t technically a “new” building although the interiors have been completely redesigned by architect Stefano Boeri. Read more here.

8.Parrocchia Dio Padre Misericordioso
Architect: Richard Meier
Year: 2003
Location: Largo Terzo millennio, 8
Facade Description: Is is the first realized work of the American architect in the Italian capital, followed by the Ara Pacis Museum. The Vicariato of Rome (diocese of Rome’s Bishop, the Pope) committed this work to show and highlight the basic role that architecture plays in holy and religious spaces, and to demonstrate that the connection with contemporary architecture is the key to improve quality of life in suburban areas. Read more here.

9. EUR New Congress Centre
Architect: Fuksas
Year: 2014 (expected)
Location: via Cristoforo Colombo, viale Europa, viale Asia e viale Shakespeare
Facade Description: Fuksas’ project is the response to a competition held in 1998 by the Council of Rome to reinforce the international image of the Italian capital in the panorama of congress and international meetings. It is still under construction. Read more here.
If you want to learn more about Rome’s Architecture have a look to The Free Architecture Guide of Rome or click on the map below.


























Wonderful set of images that show stunning buildings, but I can understand that they would cause controversy.
LikeLike
Hey Sally, I’ll admit that I don’t like some of these (like the 2 skyscrapers) but the MAXXI for example was an amazing building. Given that it’s not on the city center and its program (museum of contemporary art) I think it did a pretty good job. Do you have a favourite too?
LikeLike
It must be difficult to build anything new in a city in which you are constantly running into or uncovering history. My temporary home of Istanbul has a similar problem. But these images show some very interesting buildings. My favorite is the “Auditorium Parco della Musica.”
LikeLike
Richard! That’s indeed a big problem, every time they start digging to build the foundations some new ruins pop up. That’s mainly the reason why the city center has no new buildings. In fact, the Auditorium by Renzo Piano found some ruins while building it and that’s why the final disposition of the three pieces is in that point, because it leaves the ruins exposed to the public. It’s a pretty interesting complex! I absolutely hate the skyscrapers by the way!
LikeLike
That was a very clever way to accommodate the past and move on with the future. I’d love to see it in person. And of course attend a concert or opera in one of the halls. 🙂
Yeah, I have to agree with you about the two skyscrapers. Meh, that’s the best they could do in Rome? Really?
LikeLike
I started living in Rome after a while living in Chicago and when I saw the skyscrapers it just felt…wrong! I know Rome has to move forward to a more modern city concept, however, that’s not the way!
LikeLike
Los has ido a ver?
Yo sólo he visto un par, pero es que, me parecen tan “secundarios” comparado con Roma, esa ciudad tan…….Roma.
LikeLike
Si no supiese que eres arquitecta, imaginaría que eres arquitecta hahah. Los he ido a ver todos menos la estación de Triburtina. Los rascacielos no entran dentro de lo que considero arquitectura directamente. El MAXXI me pareció espectacular y el Parco della Musica de Renzo Piano igual. Me pareció que estaban en su contexto fíjate, sobretodo el de Zaha Hadid por muy extravagante que fuese. Su localización al lado del tren y el dinamismo respondían bien al lugar y al programa. Y luego me llama mucho la atención que la antigua Terminal de Ostiense estuviese construida en los 90′. Parece arquitectura fascista completamente. ¿Qué opinas tú? ¿En cuáles has estado?
LikeLike
Yo estuve en las afueras del de Renzo, que me pareció un poco huevo, aunque reconozco que por dentro es un proyecto tremendo 🙂
El de Zaha Hadid, como tú dices me sorprendió a bien. Eso sí, luego visité el del complejo VITRA cuyo exterior me recordó totalmente, y ya no me gustó tanto tanta semejanza. Pero vamos la relación con el entorno bien. Luego por dentro, a lo Zaha.
Los demás apenas los conocía salvo la iglesia de Meier, que la tengo muchas ganas ya que la tuve que estudiar en composición por el tema de luz. Me pareció que en ese aspecto estaba bien resuelta, pero quiero verla y tocarla. 🙂
Aún así, reconozco que en Roma prefiero perderme por otras épocas 😉
LikeLike
Pues no vayas a la iglesia de Meier, es como un ovni plantado en mitad de la nada. Podría estar ahí como podría estar en cualquier sitio. Hay que coger 50 autobuses para llegar hasta allí además y encima el barrio es un poco turbio. La luz es increíble eso sí.
Y estoy de acuerdo, hay cosas mucho más increíbles en Roma. Yo tuve la suerte de tener la universidad en frente del Coliseo 🙂
LikeLike
I will join you in hating the skyscrapers! The church, number 8, is my favourite I think. The MAXXI looks good too. It must be really difficult trying to integrate the new with the old. Thank goodness there are lots of regulations.
LikeLike
The church by Richard Meier is famous by the use of light, and it’s indeed amazing. However, it’s located in the middle of a traditional neighborhood in the Roman suburbs making its shape more of an UFO rather than a building which responds to its context. It must be really difficult to build things that respect the past but deal with modern necessities. To me, this is the challenging part of architecture 🙂
LikeLike
In that case, the MAXXI is the one that probably blends most seamlessly with the environment. From the aerial view the buildings remind me of the famous scarab beetles of Egypt.
LikeLike
Haven’t thought of it like that but it’s true that the Auditorium looks like the beetles of Egypt. Maybe that was Renzo’s intention too. During its construction, Roman ruins were found right in the middle so this is why the “cavea” is in that point.
LikeLike
I kike parrocchia dio padre misericrdioso it has beautiful lines and has a very clean appearance. It must be a huge problem for architects to build modern structures in such an old and established city such as rome with so many buildings being listed and protected. Although i love old architecture i think it goes to far in the uk with so many listed buildings which are so ugly and very ordinary that could be replaced with beautiful structures such as this.
LikeLike
Hello Mark, it is indeed a problem. Besides the codes and the law in general, there’s a lot of controversy in Rome. Whenever a new building is announced, people get furious. On the other hand, I agree that sometimes protecting “ugly” building is stupid, especially when those aren’t suistainable either. I guess is not always black and white in this aspect.
LikeLike
WOW…such gorgeous architect and the light coming through them breathtaking.
LikeLike
Thanks for your kind words Laurie 🙂
LikeLike
I agree with your assessment of the highrises as the least interesting and compelling of the group here. What appeals to me in the others is the very different ways in which each architect or firm used an interplay of old and new, organic and geometric, standard and unexpected in their forms. The Triburtina Station is particularly intriguing as looking in some ways exactly like it could have been built in the late 50s or early 60s (both in form and material choices) but still manages to have a touch of 21st century edge.
LikeLike
Yes, I agree with that. I think it was interesting to see how international architects dealt with those conditions too. Richard Meier’s project in 2005 was the first building built in Rome by a non-Italian. 2005!!! On the other hand, the Triburtina station was a bold move towards contemporary architecture in Rome. However, as you say, the materials and form could have been from the early 60s. The JFK terminal in NY by Eero Saarinen was built in 1962 http://www.archdaily.com/66828/ad-classics-twa-terminal-eero-saarinen/
LikeLike
All these buildings have no proper relation of present to past, they lack a concern for material, nothing seems handcrafted, nor do they seem to honor the earth. But they exist, so they speak of something; maybe they speak of futility.
LikeLike
That’s a strong statement, maybe some of these don’t have a proper relation the the past but I wouldn’t say all of them. The Museum of Modern Art was built over an old train station and it seems to be related to it. On the other hand, some of these may speak of futility and time will speak making them disappear. Hopefully the two skyscrapers!
LikeLike
Those were some strong statements and pardon me for stating them without softness, but as i looked at them there was a huge disconnect with me as regards liking them, but I would imagine if I were to walk in their context, feel their space, the experience would be otherwise; it’s so easy to be critical, pardon I took that route; I always love it that you are excited and enlivened by architecture; for me, it is the highest art next to music.
LikeLike
Oh! Don’t worry, I wasn’t offended at all 🙂
It’s true that is hard to have a good perception of buildings from a screen, even if I try to find representative pictures. Architecture is an art and that is why is very subjective and each person has an opinion. But diversity of thought is good, so thanks for sharing your views!
LikeLike
Pingback: The Free Architecture Guide of Rome | Virginia Duran
Pingback: Photography: Rome in 10 Images | Virginia Duran
Pingback: 23 Spots You Shouldn’t Miss in Barcelona If You Love Architecture | Virginia Duran
Pingback: 23 Amazing Places in Barcelona’s Best Architecture City Guide – AAH
Pingback: 23 Spots You Shouldn’t Miss in Luxembourg If You Love Architecture | Virginia Duran