If we think about architecture, we think about a composition of light and materials put together in space. Furniture is barely needed since the space itself is the main feature. Sometimes, however, architecture is disguised or there are too many partitions that make it difficult to fully understand the space. Architecture, or naked architecture, should reveal the personality of the building one minute at a time, should express light continuity and should be honest with its structure. Here we have 10 examples of architecture that reveal straight away their personality and speak a language where the form starts disappearing, showing its pure naked space.
Which of these do you like most?
1. New Concrete House
Location: S.Abbondio (Switzerland)
Architect: Wespi de Meuron
Year: 2012
Read more here

2. Caja Granada
Location: Granada (Spain)
Architect: Alberto Campo Baeza
Year: 1992
Read more here.


3. + Node
Location: Hiroshima (Japan)
Architect: UID Architects
Year: 2012
Read more here.

4. Riverside Clubhouse
Location:Â Yancheng (China)
Architect: TAO
Year: 2010
Read more here.
5. 4×4 House
Location: Kobe (Japan)
Architect: Tadao Ando
Year: 2003
Read more here.
6. X House
Location: Quito (Ecuador)
Architect: Arquitectura X
Year: 2007
Read more here.

7. Chapel in Villeaceron
Location: Almadén (Spain)
Architect: S.M.A.O
Year: 2001
Read more here.



8. House W
Location: Huentelauquen (Chile)
Architect: 01Arq
Year: 2007
Read more here.


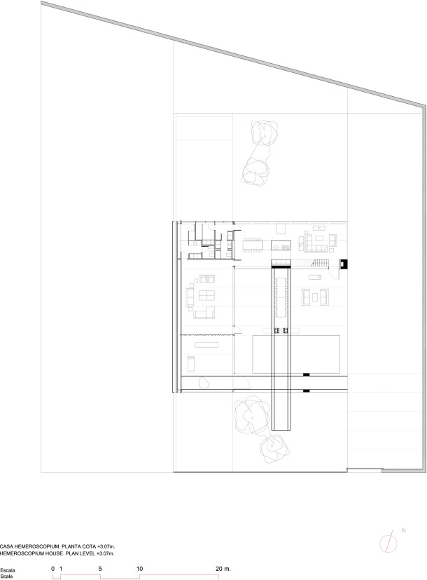
9. Hemeroscopium House
Location: Madrid (Spain)
Architect: Ensamble Studio
Year: 2008
Read more here.


10. House in Abiko
Location: Abiko (Japan)
Architect: fuse-atelier
Year: 2011
Read more here.























There are a couple of those I would enjoy living in . . . now all I need is a boat-full of cash.
LikeLike
Hahahaha same here! Hopefully I’ll get to build some of my ideas soon!
LikeLike
…and a BOAT.
LikeLike
Those are all so wonderfully stark. I was going to say 8. But I have to go with 9, because I’m a swimmer, and it would be awesome to swim laps in that extended, second-floor lap pool.
Of course, the owner of the home is himself an architect. I found this video on Youtube.
LikeLike
Thanks for sharing the video, it helps to understand how it was built! We must admit that #9 is an interesting raw piece of architecture… and that swimming pool must be one of the best places to swim for sure!
LikeLike
You’re welcome. It’s remarkable how #9 was built: one year of planning, plus pre-fabrication of all the pieces, and then seven days of assembly.
LikeLike
I love this kind of architecture… I could see owning one of these places…. not to live in by any means… but to go to when I wanted to get away from the clutter of my own home… just to sit and think and dream with no internet or cell phone… and then come back to my own cozy, messy house full of my “stuff.”
LikeLike
You could have your way of living in one of these spaces! Minimal homes don’t mean you have to keep your stuff minimal too. I would imagine myself working here with all of the boards/paintings on the floor and walls around 🙂
LikeLike
Perhaps number 5. It has a coziness to it as well as the openness.
LikeLike
Yes, it achieves both. I really like this example because is a mixture of traditional Japanese architecture and its modern interpretation.
LikeLike
Exactly. My only worry is that it is a bit too close to the sea for my liking! Thinking tsunami danger!
LikeLike
After what you had to live this feeling is quite normal. I really hope they’ve taken care of that and the structure is appropriate.
LikeLike
Really love 3,4,5 & 6. Amazing structures and spaces.
LikeLike
Who wouldn’t like to work/live in one of these… at least once?
LikeLike
I especially like the way 4 incorportates the grove of trees inside.
* would be a wonderful place to be – as long as there were no serious high seas or storms!
LikeLike
I think this example is outstanding for respecting its environment and using similar materials on its construction. That is the problem with exotic locations…it seems we can’t have everything 🙂
LikeLike
LOL that asterisk is meant to be an 8 – typos are my trademark!
LikeLike
I really like the simplicity, or at least apparent simplicity, of these spaces and buildings.
LikeLike
The more simple it looks the more difficult it’s construction can turn out to be! But achitecture should be honest with its “personality”.
LikeLike
Another excellent post! I have been meaning to ask how architects deal with affordable housing, one of the most critical issues facing us today. Just recently, I picked up a copy of “Dwell” which showed the latest on housing. What was interesting was the cover page which displayed a photo of a home much like you presented in the post. There was a mother playing with her child around a pristine pool. But if you looked very closely (as I did) there was a barbed wire around the home to keep intruders out.
Architecture has always been a key indicator, or rather a reflection, of the current state of society. Your thoughts would be very much appreciated.
LikeLike
Ha! You gave another idea for another post. What you point out is one of the main concerns nowadays. I have to admit that many projects I had to do at school were excersises low on resources and maybe this is why I like buildings with high budgets. However, it is very interesting to see how architects deal with no money or no space (small sites are very challenging too).
On the other hand, I agree with you, architecture is a reflexion of the society’s state. I am really happy that buildings that generate energy are starting to be the target. Sustainability is the future.
How is it in Canada?
LikeLike
Canada’s harsh winter climate is a critical component of the sustainability question. We use a great deal of energy in the winter, given that many of our cities have minus 25 – 30 degrees F. Vancouver is a testament to preserving green space. Olympic Village is high density with most condos ranging between 500 – 800 square feet. And people are embracing the small quarters. I think it is part of de-accumulation that is transforming the baby boomer culture. It will be interesting to follow! And your blog challenges me to think in new ways. 🙂
LikeLike
Such fascinating buildings!
LikeLike
Pingback: The Most Bizarre Concrete Building in Madrid | Virginia Duran
Pingback: Curiosities: Modern Religious Architecture (2001-2012) | Virginia Duran